Разработка чертежей
металлоконструкций
Металлоконструкции разных типов позволяют потребителю
получить целый ряд существенных преимуществ по сравнению с иными
технологиями, поэтому они используются в современном строительстве
достаточно широко.
Грамотная разработка чертежей для их производства
компанией "Скаут-Консалтинг" поможет решить поставленную
задачу с разумными затратами времени и денежных средств.
У нас работают опытные специалисты, способные правильно выполнить
работу любого уровня сложности. Их высокая квалификация позволяет
им выполнять задания точно в срок, оговоренный с заказчиком изначально.
Главным преимуществом обращения к нашей компании является то, что
здесь объединены производственные и конструкторские подразделения.
Таким образом, имеется возможность выполнения всех необходимых работ
в одном месте, быстро и экономно.
Большие и малые заказы. Мы с одинаковым вниманием
относимся к выполнению любых работ, учитываем специфические пожелания
заказчиков и условия будущей эксплуатации. Разработка чертежей металлоконструкция
нашим специализированным подразделением позволит значительно снизить
металлоемкость при создании проектов, оптимизировать соответствующие
параметры. При необходимости ускорения работ возможно создание всего
проекта по частям и одновременное начало производства. Мы предоставляем
заказчику спецификации на используемый металл, сводную деталировку
с указанием количества элементов, ведомости схем монтажа, метизных
изделий, чертежи для изготовления шаблонов, другие необходимые документы.
Комплексный подход к разработке и производству металлоконструкций
выгоден каждому заказчику. Обращайтесь к нашим высококвалифицированным
специалистам. Они предоставят вам всю необходимую информацию для
принятия правильного решения!
Проектирование и разработка
чертежей КМ и КМД
Звоните! +7 (921) 951-42-48
Чертеж: Cтол подвижный сборочный масштабируемый

Фото готового стола

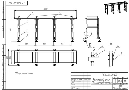
Чертеж: Рольганг регулируемый многоцелевой

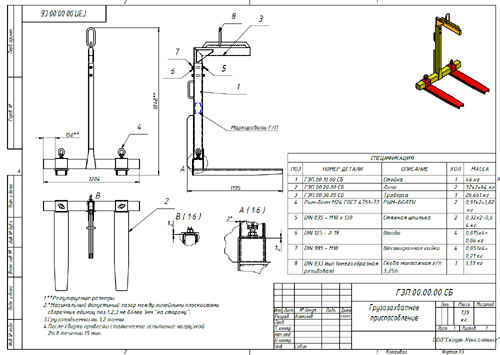
Чертеж: Захват для перемещения европоддонов

Чертеж: Кронштейн (разработка)

Проектирование металлоконструкций,
разработка чертежей

<<<
Назад
|